Logo
MESSAGE US! info@bpinterior.com
  • Home
  • Who We Are
  • Packages
  • Our Services
  • Our Projects
  • Why Hire Us
  • Our Team
  • Contact Us
  • Home
  • Project Details

Soft Luxury Apartment Interior

Soft Luxury Apartment Interior
Soft Luxury Apartment Interior Gallery
Soft Luxury Apartment Interior Gallery
Soft Luxury Apartment Interior Gallery
Soft Luxury Apartment Interior Gallery
Soft Luxury Apartment Interior Gallery
Soft Luxury Apartment Interior Gallery
Soft Luxury Apartment Interior Gallery
Soft Luxury Apartment Interior Gallery
Soft Luxury Apartment Interior Gallery
Soft Luxury Apartment Interior Gallery

Project Description

This interior concept is designed in a soft luxury style, combining elegant architectural detailing with warm, neutral tones and refined materials.
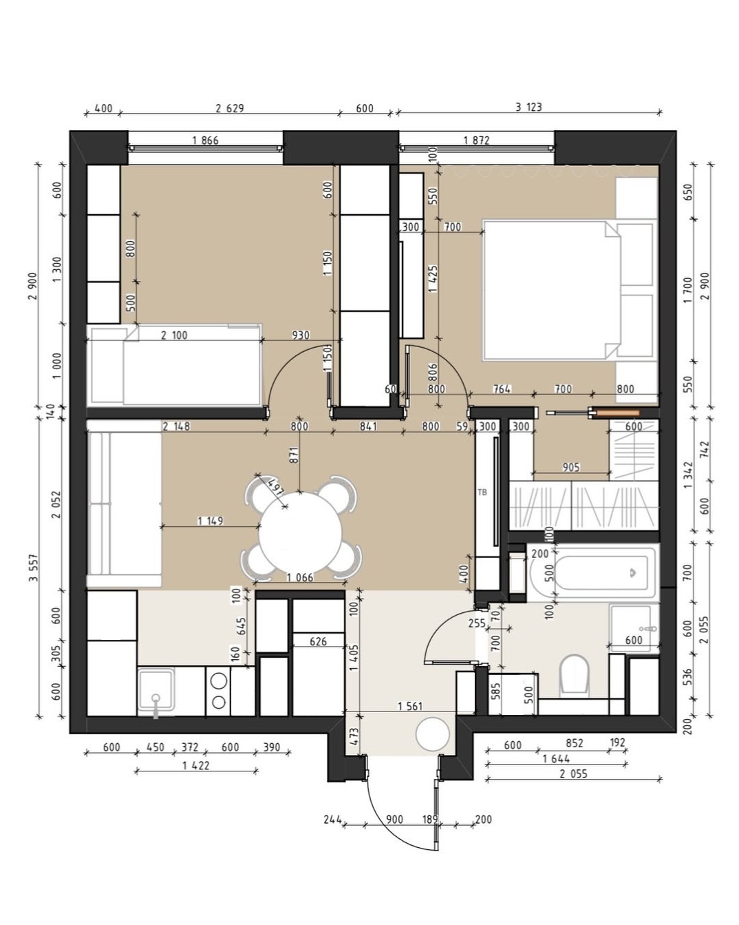
The layout is carefully planned to maximize functionality and flow, as reflected in the optimized floor plan and seamless connection between living, dining, and kitchen areas.
The bathroom and bedroom spaces are conceived as calm, hotel-inspired retreats, featuring natural stone surfaces, custom cabinetry, and subtle decorative lighting.
Throughout the apartment, layered lighting, soft textures, and warm material contrasts create a harmonious, timeless interior that balances comfort, elegance, and everyday practicality.


Project Details

  • Location: Zagreb
  • Area: 85 m²
  • Type: Apartment
  • Style: Soft Luxury / Modern Elegant
  • Scope: Full interior design concept
  • Spaces: Living room, kitchen & dining area, bedroom, bathroom
  • Design focus: Comfort, elegance, functional layout
  • Value: Pvc Panels, Compact , wood veneers, soft fabrics, brass accents
  • Lighiting: Ambient LED & decorative lighting
  • Deliverables: 3D concept, floor plan, 4K renders, material selection
  • Status: Concept design

Copyrights © 2025 All Rights Reserved